Rodinná vila v Praze

„Dům si neběží pro selfie. Dům tu je, stojí, pozoruje. Je svědek své doby.“
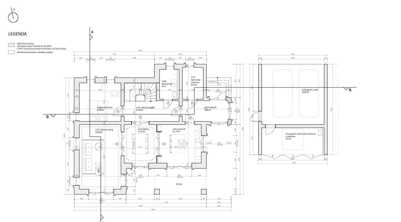
Současná interpretace tradiční architektury s důrazem na nadčasovou jednoduchost
Typ projektu Novostavba rodinného domu
Lokalita Praha, Česká republika
Autoři návrhu Bořek Němec (fáze VF 1–7); Alžběta Pomahačová, Linda Němcová, Richard Zacpal (výkonové fáze 1 – 4)
Soukromý
Realizace 2017 – 2021
Statické řešení Ing. Jan Zatloukal
Elektroinstalace Ing. Karel Čáp
Topný systém Ing. Petr Pohl
Voda/kanalizace Blanka Matoušková (VF 1–3), Ing. Martin Januš (VF 4–7)
Geologie Ing. Martin Řízek
Zhotovitel Stavitelství Procházka
Fotografie Dipl.-Ing. Till Schuster
Ve světě architektury, kde se setkáváme buď s chaosem, nebo naopak s přílišnou snahou o originální vzhled za každou cenu, jsme si položili otázku – je ještě možné postavit dům, který působí přirozeně a samozřejmě?
Projekt je návratem ke kořenům. Kombinuje silnou, srozumitelnou formu s historickými prvky, jako jsou valbová střecha, omítané zdivo nebo reminiscence říms.
Inspirací nám byly byty na pražských Vinohradech – s vysokými stropy, prostornými místnostmi, které lze různě využívat, a typickým průchodem z pokoje do pokoje v jedné linii. Použité materiály i uspořádání domu odkazují na architekturu konce 19. století, kdy vznikala celá řada elegantních městských čtvrtí.

















